Коттедж, Заречье, 32д Показать на карте
Заречье
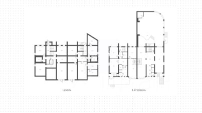
ID: 23523Эксклюзив Prime! Классическое домовладение, продуманное до мелочей, располагается в статусном поселке Заречье на Николиной горе. Дом общей площадью 581 м с собственной SPA зоной построен на просторном участке 32 сотки всего в 21 км от МКАД по РублевоУспенскому шоссе. Это вторичная продажа от собственника, что гарантирует понятную историю объекта, при этом недвижимость не имеет никаких обременений. Удобная транспортная доступность позволяет быстро добираться до города, а развитая инфраструктура района обеспечивает доступ к лучшим школам, клиникам и ресторанам.На первом этаже вас встречает продуманное жилое пространство, где функциональность соединяется с уютом. Здесь расположены просторная гостиная и большая кухнястоловая, создающие единое светлое пространство для семейных вечеров и приема гостей. Холл формирует удобную парадную зону, рядом предусмотрены кладовая и гостевой санузел. Из гостиной есть выход на небольшую террасу, где можно проводить утренние часы или отдыхать в теплое время года. Второй этаж поражает атмосферой тишины и приватности: здесь расположены две спальни, включая просторную мастерзону с собственным балконом гардеробной и ванной комнатой, а также уютная спальня с большим балконом и Ванная комната. Холл и зона второго света создают ощущение воздуха и свободы, наполняя пространство естественным светом. Эта планировка идеально подходит для семьи, где каждому важно иметь личное пространство для отдыха и восстановления.Третий этаж расширяет возможности дома и формирует дополнительный приватный уровень. Здесь расположена вторая гостиная, которая может стать медиазалом, библиотекой или пространством для встреч. Дополнительно предусмотрены две спальни и кабинет, ванная комната и выход на просторный балкон. Второй свет усиливает ощущение вертикального объема и делает этаж особенно атмосферным.Цокольный этаж превращает дом в полноценный загородный курорт. Здесь расположен большой бассейн площадью 60 м, сауна, хаммам, купель, тренажерный зал и уютная гостиная зона отдыха. Также предусмотрены прачечная, бойлерная и вспомогательные помещения, обеспечивающие комфортное обслуживание дома. Этот уровень создан для релаксации, спорта и восстановления, позволяя наслаждаться всеми преимуществами SPAкомплекса, не выходя из дома.На участке площадью 32 сотки выполнен ландшафт, создающий атмосферу уединения. Здесь расположены дополнительные строения, которые делают проживание еще более комфортным: гараж на два автомобиля, отдельный дом для персонала и уютная беседкабарбекю, где можно проводить время с семьей и друзьями. Просторная территория позволяет наслаждаться тишиной и природой вдали от городской суеты.Состав помещений:Цоколь: SPA зона: бассейн, хамам, сауна, душевая, зона отдыха. Тренажёрный зал. Бойлерная, прачечная, кладовая.1-й этаж: Холл, гостиная, кухня -столовая с выходом на террасу, гостевой с/у, гардеробная.2-й этаж: Холл, мастер спальня с гардеробной и ванной комнатой, спальня, ванная комната.3-й этаж: Гостиная, кабинет, две спальни, ванная комната.Безопасность проживания обеспечивается закрытой территорией поселка с профессиональной охраной. Вы можете быть спокойны за приватность вашей жизни и сохранность имущества. Это домовладение не оставит вас равнодушными, предлагая редкое сочетание классической архитектуры, продуманной планировки всех уровней и современного комфорта в одном из самых престижных мест Подмосковья. Здесь легко поймать покой и умиротворение - дом ждет своего владельца.Информация о коттеджном поселке: Поселок Заречье на Николиной горе стал домом для многих деятелей искусства, науки и бизнеса. Это не удивительно: в прекрасном экологически чистом районе расположились элитные дома, отвечающие самым высоким требованиям комфорта. Близость к столице и определенный престиж сделали это место одним из самых заманчивых поселков Подмосковья. Всего в Заречье построено 40 частных домовладений на участках различной площади. Изюминка поселка собственный пляж.Если вас заинтересовал объект - мы всегда на связи, звоните! В удобное для вас время организуем показ!Наше агентство - прямой представитель собственника этого дома, поэтому мы сможем ответить на все ваши вопросы.Каждому клиенту мы гарантируем полное юридическое сопровождение.Вы также можете написать нам сообщение, оставив в нем свой номер для обратной связи. Мы перезвоним вам в течение дня.Подпишитесь на уведомления о снижении цены, чтобы первым узнать о выгодном предложении!
581 м2
4 этажа
- Показать контакты
- Добавить в избранное
581 м2
4 этажа
350 000 000
602 410 /м2
