Дом, Воздвиженская Показать на карте
Сергиев Посад
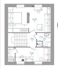
Арт. 75333612 Предлагаем два капитально построенных дома на участке 16.7 соток по адресу: г. Сергиев Посад, ул.Воздвиженская. Большой дом 114,7 под внешнюю и внутреннюю отделку. Фундамент бетонный, глубиной 2,5 м. Под всем домом - подвал. Отдельный фундамент под русскую печь 1.5м.Стены: первый этаж - кирпич, толщина 57см, второй этаж - арболитовый блок, толщина -40 см.Поменьше дом - жилой, одноэтажный, на бетонной плите, 54 кв. м. 2014 года постройки. Сварной металлический каркас с утеплителем. Внутри дома две небольшие спальни, кухня -столовая, санузел, прихожая, вместительный холодный тамбур, баллонный газ, электричество - 15 кВт, проведён интернет (оптоволокно). Дом отапливается современной чугунной отопительно-варочной печью-камином ''Гулливер'' Сербской фирмы ''Гуча''.Коммуникации: Водопровод - центральный +своя скважинаГаз заведён на участок. Проект и договор с Мособлгазом готовы. Электричество - 15 кВтКанализация септик. Планируется до конца этого года проведение городской канализации.Участок правильной формы, благоустроен. По периметру огорожен забором. Граничит всего с двумя участками. Прекрасное месторасположение и большой ухоженный участок в тихом и комфортном районе города. Прямой выезд на Западную объездную дорогу 1.3 км.Оказываем юридическое сопровождение сделки.
114 м2
2 этажа
Кирпич
- Показать контакты
- Добавить в избранное
114 м2
2 этажа
Кирпич
8 700 000
76 316 /м2
