Если цена в объявлении изменится, мы сразу сообщим вам об этом на электронную почту.
Нажимая «Подписаться», вы соглашаетесь с правилами.
продам дом, Панфилова, 3933 000 000 ₽
26 фев
Дата публикации объявления
Обн. 7 апр
Дата обновления объявления
107 143 ₽/м²
Чистая продажа
Термин "Чистая продажа" означает, что в квартире никто не прописан или
есть куда выписаться и вывезти вещи. Это лучший вариант для покупателя.
Вероятность срыва сделки минимальна.
Этажей3
Площадь участка10 соток
Общая площадь308 м2
Материал домакирпич
ЭлектричествоЕсть
Газоснабжениецентральное
Продается шикарный трехэтажный дом в г. Дедовске Истринского р-на. Идеальный вариант для вышедших на заслуженный отдых, с приезжающими детьми и внуками на выходные и летнее время. А так же для молодой семьи с детьми.
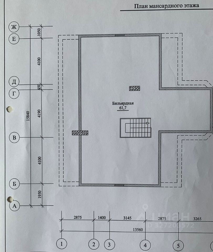
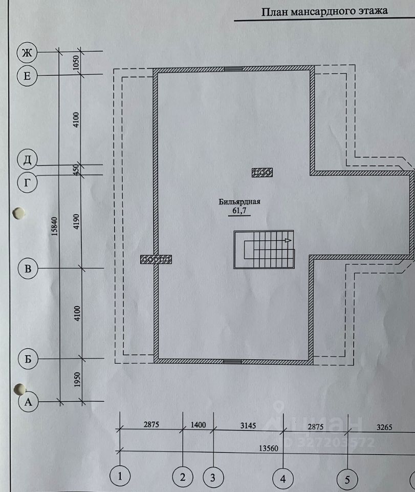
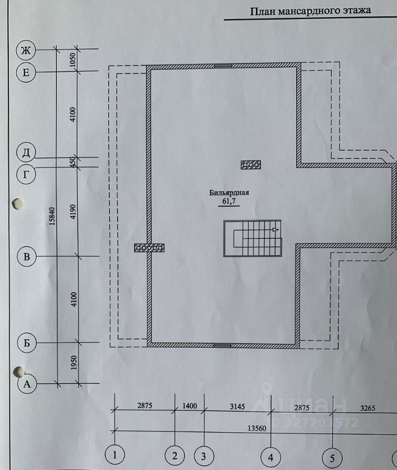
Дом кирпичный. Фундамент монолитный. Общая площадь дома 308 кв.м. Земля 10 сот. ИЖС. Грамотная планировка: • 1 этаж: гостиная совмещенная с кухонной зоной 48,3кв.м., прихожая 17,8 кв.м., холл 32,8 кв.м., кабинет17,3 кв.м., гостевой с/у 6,5 кв.м. кладовая комната 7,7 кв.м. • 2 этаж: четыре спальные комнаты 20,5-20,1-19,7-18,1 кв.м., с/у 8,9 кв.м., второй свет. • 3 этаж: мансарда 61,7 кв.м., которую можно использовать в качестве бильярдной, зоны отдыха или склада для хранения габаритных вещей.
Продается шикарный трехэтажный дом в г. Дедовске Истринского р-на. Идеальный вариант для вышедших на заслуженный отдых, с приезжающими детьми и внуками на выходные и летнее время. А так же для молодой семьи с детьми.
Дом кирпичный. Фундамент монолитный. Общая площадь дома 308 кв.м. Земля 10 сот. ИЖС. Грамотная планировка: • 1 этаж: гостиная совмещенная с кухонной зоной 48,3кв.м., прихожая 17,8 кв.м., холл 32,8 кв.м., кабинет17,3 кв.м., гостевой с/у 6,5 кв.м. кладовая комната 7,7 кв.м. • 2 этаж: четыре спальные комнаты 20,5-20,1-19,7-18,1 кв.м., с/у 8,9 кв.м., второй свет. • 3 этаж: мансарда 61,7 кв.м., которую можно использовать в качестве бильярдной, зоны отдыха или склада для хранения габаритных вещей.
Потрясающие панорамные окна Kaleva 6 метров в высоту. Качественная лестница два пролета на три этажа выполнена из бука с кованными балясинами. Элетромощность 15 кВт. Водонагреватель Gorenje. Надежный газовый котел итальянской фирмы Ferolly. Вся бытовая техника для комфортного проживания. Есть возможность установки дровяного камина. Выполнена разводка под системы кондиционирования. Центральные коммуникации (газ, вода, канализация).
Кованные въездные ворота. Лицевая сторона забора из кирпича. На участке посажены плодоносящие яблони, кусты смородины. Закрытый гараж на две легковые машины. Солидные соседи.
Прекрасное транспортное сообщение. Ж/д станция Миитовская в минуте ходьбы. До станции метро Нахабино МЦД-2 10 мин. на электричке. Прекрасная экология. Богатейшая инфраструктура: Ашан, фитнесс зал, сетевые маркеты (Пятерочка, Магнит, Перекресток), Детский сад, Лицей. Свободная продажа. 1 собственник. Полная стоимость в договоре. Ни каких долгов, обременений и залогов.