Если цена в объявлении изменится, мы сразу сообщим вам об этом на электронную почту.
Нажимая «Подписаться», вы соглашаетесь с правилами.
продам дом, Садовая, 23г20 700 000 ₽
10 сен
Дата публикации объявления
Обн. 25 фев
Дата обновления объявления
5
Количество просмотров (+ просмотры за сегодня)
129 375 ₽/м²
Чистая продажа
Термин "Чистая продажа" означает, что в квартире никто не прописан или
есть куда выписаться и вывезти вещи. Это лучший вариант для покупателя.
Вероятность срыва сделки минимальна.
Этажей2
Площадь участка5 соток
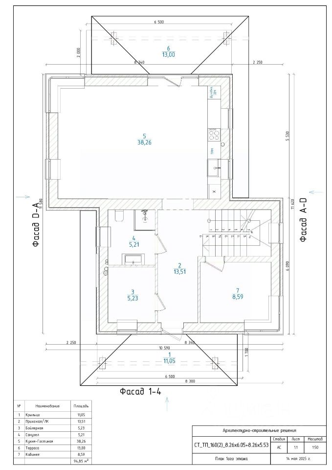
Общая площадь160 м2
Материал домакирпич
ЭлектричествоЕсть
Газоснабжениецентральное
Внесен аванс. Современный двухэтажный дoм с панорамным остеклением в престижной районе Сергиева Посада от ЗАСТРОЙЩИКА. ИЖС. Газ подключен. Если у вас один ребенок до 6 лет или двое несовершеннолетних детей любого возраста, у вас есть возможность оформить семейную ипотеку на покупку загородной недвижимости. Дом на монолитном фундаменте 2025 года постройки. Стены из газобетонных блоков снаружи облицованы кирпичом баварская кладка. Крыша покрыта фальцевой кровлей, установлены снегозадержатели и водосточная система. Остекление выполнено энергосберегающими ПВХ-стеклопакетами с зеркальными стеклами. Дом без унутренней отделки, что позволит реализовать ваши дизайнерские идеи.
На первом этаже дома расположен просторный холл 13,5 кв.м, кабинет 8,59 кв.
Внесен аванс. Современный двухэтажный дoм с панорамным остеклением в престижной районе Сергиева Посада от ЗАСТРОЙЩИКА. ИЖС. Газ подключен. Если у вас один ребенок до 6 лет или двое несовершеннолетних детей любого возраста, у вас есть возможность оформить семейную ипотеку на покупку загородной недвижимости. Дом на монолитном фундаменте 2025 года постройки. Стены из газобетонных блоков снаружи облицованы кирпичом баварская кладка. Крыша покрыта фальцевой кровлей, установлены снегозадержатели и водосточная система. Остекление выполнено энергосберегающими ПВХ-стеклопакетами с зеркальными стеклами. Дом без унутренней отделки, что позволит реализовать ваши дизайнерские идеи.
На первом этаже дома расположен просторный холл 13,5 кв.м, кабинет 8,59 кв.м, санузел с душевой кабиной 5,2 кв.м, бойлерная 5,2 кв.м, кухня-гостиная 38,3 кв.м. с выходом на открытую террасу 13 кв.м. На второй полноценный этаж (не мансарда) ведет удобная монолитная лестница. На втором этаже планировкой предусмотрены три отдельные спальни 19,2 кв.м, 12,7 кв.м, 13,4 кв.м, одна из которых с гардеробной комнатой, просторный санузел с ванной. Имеется доступ в чердачное помещение.
Коммуникации: электричество 3 фазы, водоснабжение от скважины, есть возможность подключться к центральному водоснабжению, установлена станция биоочистки, МАГИСТРАЛЬНЫЙ ГАЗ ПОДКЛЮЧЕН. Транспортная доступность: круглогодичный подъезд на личном транспорте по асфальтовой дороге, автобусная остановка расположена в двух минутах ходьбы от дома, 10 минут до центра Сергиева Посада. Участок 5 соток, правильной формы, с небольшим уклоном, что делает его сухим в любую погоду, сделан дренаж. По периметру огорожен забором из профнастила на металлическом каркасе с калиткой и распашными воротами. Площадка для двух автомобилей отсыпана гравием. Доступна вся городская инфраструктура: сетевые магазины, школы, детские сады, библиотеки, спортивные и общественные организации.
Участок отмежеван, дом и земля оформлены в собственность. При покупке возможно использование материнского капитала, любых жилищных сертификатов. Любая ипотека любого банка. #Семеная ипотека #Ипотека с господдержкой #Комбо-ипотека #Сертификаты #Застройщик #ИП #Юр.лицо