Если цена в объявлении изменится, мы сразу сообщим вам об этом на электронную почту.
Нажимая «Подписаться», вы соглашаетесь с правилами.
продам дом, Садовая, 23г21 000 000 ₽
10 сен
Дата публикации объявления
Обн. 12 янв
Дата обновления объявления
1
Количество просмотров (+ просмотры за сегодня)
113 514 ₽/м²
Чистая продажа
Термин "Чистая продажа" означает, что в квартире никто не прописан или
есть куда выписаться и вывезти вещи. Это лучший вариант для покупателя.
Вероятность срыва сделки минимальна.
Этажей2
Площадь участка5,3 соток
Общая площадь185 м2
ЭлектричествоЕсть
Газоснабжениецентральное
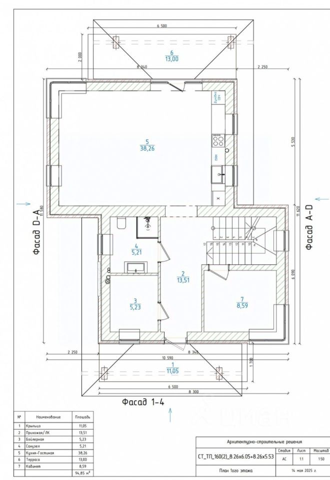
Арт. 116056322 Продается просторный дом в центре Сергиева Посада.
Современный, капитальный дом для постоянного проживания в самом сердце города. Не типовой проект, а дом мечты, построенный с безупречным качеством и вниманием к деталям.
Расположение:
Город: Сергиев Посад Район: Центр города Участок: 5.27 соток, огорожен забором из профлиста на металлокаркасе.
Конструктив и отделка:
Фундамент: Монолитный ленточный, глубина заложения 1.6 м. Стены: Пеноблок (375 мм) + внешняя отделка облицовочным кирпичом с роскошной ''баварской кладкой'' и цветным швом. Дополнительные вставки из лиственницы и гибкой керамики PhomiRussia создают уникальный экстерьер. Перекрытия: Железобетонные плиты.
Арт. 116056322 Продается просторный дом в центре Сергиева Посада.
Современный, капитальный дом для постоянного проживания в самом сердце города. Не типовой проект, а дом мечты, построенный с безупречным качеством и вниманием к деталям.
Расположение:
Город: Сергиев Посад Район: Центр города Участок: 5.27 соток, огорожен забором из профлиста на металлокаркасе.
Конструктив и отделка:
Фундамент: Монолитный ленточный, глубина заложения 1.6 м. Стены: Пеноблок (375 мм) + внешняя отделка облицовочным кирпичом с роскошной ''баварской кладкой'' и цветным швом. Дополнительные вставки из лиственницы и гибкой керамики PhomiRussia создают уникальный экстерьер. Перекрытия: Железобетонные плиты. Кровля: Фальцевая металлическая кровля Grand Line (кликфальц). Современная, долговечная и стильная. Окна: Качественные стеклопакеты SCHTANDARTB (REXAY), угловое остекление обеспечивает максимальное освещение и панорамный вид. Лестница: Монолитная ж/б конструкция. Дом на данный момент ''в черновой отделке''. Для вашего удобства можем разработать типовой проект дизайна интерьера со сметой, который можно реализовать в кратчайшие сроки. Или же вы можете беспрепятственно воплотить в жизнь собственный проект.
Коммуникации:
Отопление: Газ. Электричество: 15 кВт. Водоснабжение: Центральное водоснабжение/скважина. Канализация: Современная автономная станция биологической очистки ''ТОПАЗ-8'' .
Цена указана без внутренней отделки. Звоните в любое время для уточнения информации и записи на просмотр!