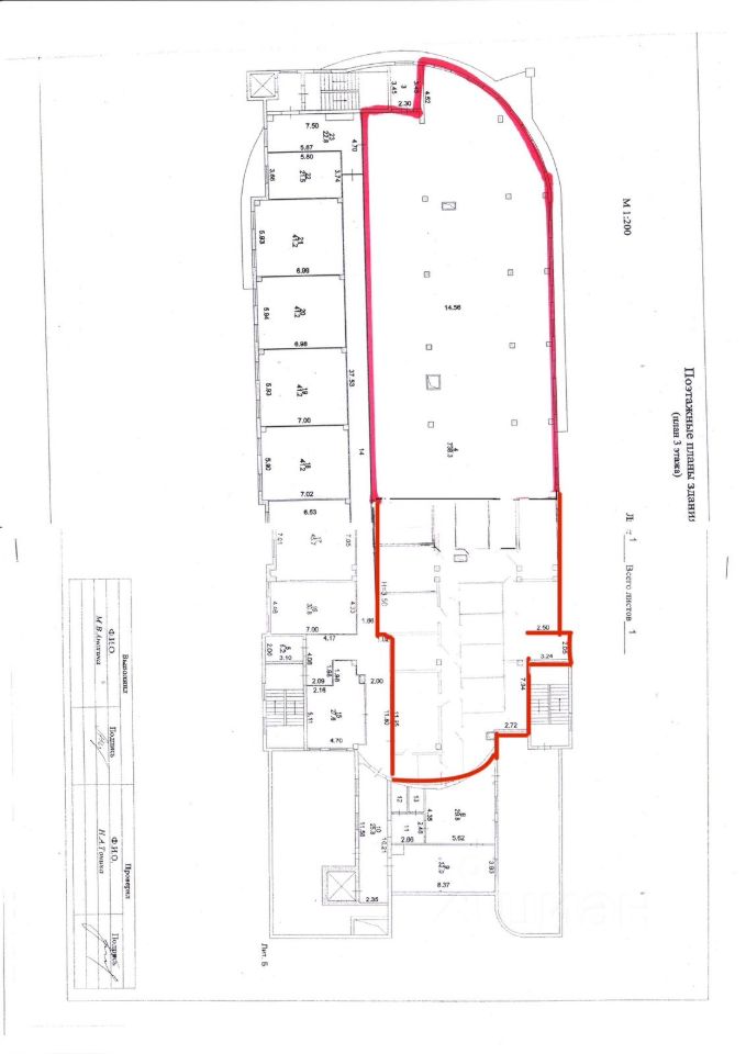
Продается помещение свободного назначения общ.пл. 738.3 кв.м. на 3 этаже в т/ц Бородино на мкр.Углич в г.Сергиев Посад.
Помещение свободной планировки.
На 1 этаже расположен супермаркет АТАК,
На 2 этаже множество магазинов,
На цокольном этаже Fix Price,
Напротив т/ц находится Районная Больница.
На данный момент арендуют часть помещения под швейное производство (готовы продолжить арендовать).
Большая парковка, имеется лифт, отдельный вход.





















