Если цена в объявлении изменится, мы сразу сообщим вам об этом на электронную почту.
Нажимая «Подписаться», вы соглашаетесь с правилами.
продам коттедж, Центральная, 716 000 000 ₽
2 авг 2025
Дата публикации объявления
Обн. сегодня
Дата обновления объявления
2
Количество просмотров (+ просмотры за сегодня)
54 545 ₽/м²
Чистая продажа
Термин "Чистая продажа" означает, что в квартире никто не прописан или
есть куда выписаться и вывезти вещи. Это лучший вариант для покупателя.
Вероятность срыва сделки минимальна.
Этажей1
Площадь участка6 соток
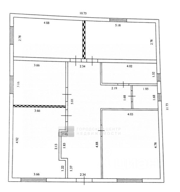
Общая площадь110 м2
ЭлектричествоЕсть
Газоснабжениецентральное
Арт. 105463869 Новый ( 2 года) зарегистрированный в установленном порядке жилой дом площадью 110 м. кв. на земельном участке 6 соток (ЛПХ) правильной формы с прямым выходом в грибной лес. В доме кухня - столовая (с диваном будет гостевой спальней), четыре спальни, просторный санузел, котельная. Один этаж и отсутствие лестницы - это комфорт проживания и экономия минимум 20 м. кв. полезной площади. Большой чердак можно использовать, как склад сезонных вещей. Фундамент ж/б монолитный ленточный. Цоколь высотой 75 см засыпан привозным песком по которому отлита ж/б плита. Стены из газосиликатного блока облицованы щелевым отделочным кирпичом. Под стропильной системой по стенам и перегородкам отлит ж/б армопояс. Потолок утеплн 200 мм базальтовым утеплителем.
Арт. 105463869 Новый ( 2 года) зарегистрированный в установленном порядке жилой дом площадью 110 м. кв. на земельном участке 6 соток (ЛПХ) правильной формы с прямым выходом в грибной лес. В доме кухня - столовая (с диваном будет гостевой спальней), четыре спальни, просторный санузел, котельная. Один этаж и отсутствие лестницы - это комфорт проживания и экономия минимум 20 м. кв. полезной площади. Большой чердак можно использовать, как склад сезонных вещей. Фундамент ж/б монолитный ленточный. Цоколь высотой 75 см засыпан привозным песком по которому отлита ж/б плита. Стены из газосиликатного блока облицованы щелевым отделочным кирпичом. Под стропильной системой по стенам и перегородкам отлит ж/б армопояс. Потолок утеплн 200 мм базальтовым утеплителем. Электричество 380V 15 кВт выделено (счётчик на столбе), канализация выведена в два переливных колодца диаметром 1.5 м (два колодца по два кольца), газ магистральный за забором. По газу сейчас нет проблем с подключением, покупателю дам контакт - решается быстро и не дорого. Цена 6 млн р