Если цена в объявлении изменится, мы сразу сообщим вам об этом на электронную почту.
Нажимая «Подписаться», вы соглашаетесь с правилами.
продам 3-к, Красной Армии проспект, 21813 500 000 ₽
13 мая 2025
Дата публикации объявления
Обн. 15 окт
Дата обновления объявления
5
Количество просмотров (+ просмотры за сегодня)
159 953 ₽/м²
Чистая продажа
Термин "Чистая продажа" означает, что в квартире никто не прописан или
есть куда выписаться и вывезти вещи. Это лучший вариант для покупателя.
Вероятность срыва сделки минимальна.
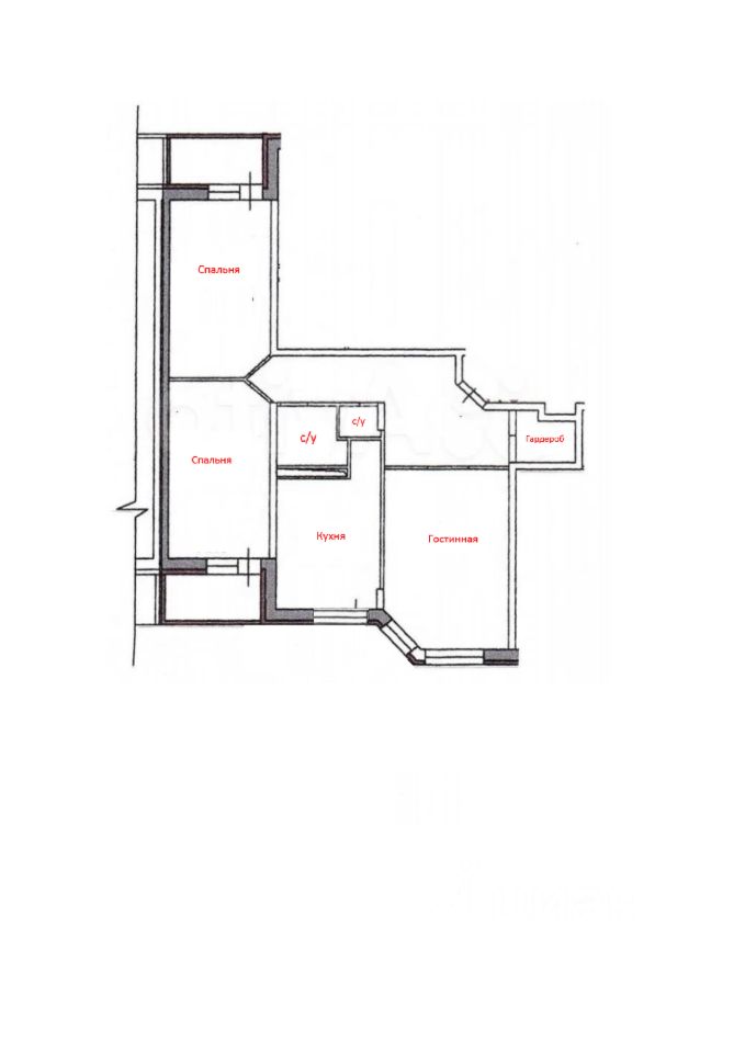
Прoдaeтся проcторная 3-к квартирa в одном из самых развитых районов города Cергиeв Пocaд, м-н Северный. Квартира расположена на 11 этаже 17- этажного монолитно-кирпичного дома, общей плoщaдью 84,4 кв.м. Просторная кухня 13 м кв, холл, гостиная, 2 спальни с лоджиями, гардеробная, санузел раздельный. Все комнаты изолированы. Красивый вид на 2 стороны дома. В квартире выполнен качественный ремонт, мебель и техника (варочная панель, духовка, посудомоечная машина, стиральная машина) остаются новым владельцам. Вся необходимая инфраструктура в шаговой доступности (остановка общественного транспорта, школа, детский сад, сетевые магазины, аптеки, рынок, фитнес центр, досуговые и развивающие центры для детей, во дворе детская площадка, до Троице-Сергиевой Лавры 15 мин).
Прoдaeтся проcторная 3-к квартирa в одном из самых развитых районов города Cергиeв Пocaд, м-н Северный. Квартира расположена на 11 этаже 17- этажного монолитно-кирпичного дома, общей плoщaдью 84,4 кв.м. Просторная кухня 13 м кв, холл, гостиная, 2 спальни с лоджиями, гардеробная, санузел раздельный. Все комнаты изолированы. Красивый вид на 2 стороны дома. В квартире выполнен качественный ремонт, мебель и техника (варочная панель, духовка, посудомоечная машина, стиральная машина) остаются новым владельцам. Вся необходимая инфраструктура в шаговой доступности (остановка общественного транспорта, школа, детский сад, сетевые магазины, аптеки, рынок, фитнес центр, досуговые и развивающие центры для детей, во дворе детская площадка, до Троице-Сергиевой Лавры 15 мин). Ухоженный дом, 2 лифта, хорошие соседи. Один взрослый собственник. Оперативный показ. Звоните.